Proiect casa Brasov, Casa fam. Szocs (107.18 mp)

Regim de înălțime: parter + mansardă
Suprafață locuibilă: 101,90 mp
+ cameră tehnică: 5,28 mp
+ două terase: 34,20 m
Suprafață desfășurată: 139,80 mp
Suprafață utilă: 107,18 mp
Volum construit: 345,10 mc
Dimensiunile clădirii: 8,75 m x 12,50 m
Unghiul acoperișului: 30 deg
Suprafața acoperișului: 202,70 mp
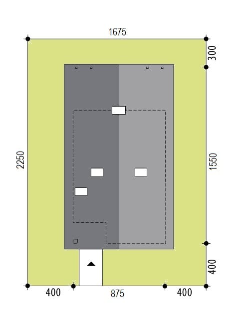
Dimensiuni minime parcelă: 16,75 m x 22,50 m

PLAN PARTER

COTE DE NIVEL

DESPRE

“Casa familiei Szocs, (proiect casa Brașov)
Este o casă fermecătoare, cu o mică zonă utilizabilă. Se distinge printr-un sistem funcțional neobișnuit. Inima casei este o cameră de zi înaltă (conectată la bucătărie și zonă de luat masa) cu vedere la verandă. Există, de asemenea, o baie, două camere și o cameră tehnică la parter. La nivelul superior există o baie, posibilitatea de a adapta o bibliotecă pe hol și un dormitor mare. Compartimentarea eficientă și înălțimile generoase oferă un sentiment de spațialitate și lumină. Designul este ideal pentru o familie tânără sau un cuplu care apreciază intimitatea, funcționalitatea și un stil de viață apropiat de natură. (proiect casa Brasov)
Detaliile arhitecturale atent gândite oferă casei un caracter cald și primitor, transformând fiecare zi într-o experiență de locuire plăcută.” (proiect casa Brasov)

Construcția vizată respectă în totalitate normele în vigoare privind materialele folosite, asigurând un echilibru termic adecvat, izolație acustică și un microclimat sănătos.

FUNCȚIONAL

PARTER
1. Vestibul 3,50 mp
2. Hol 7,02 mp
3. Camera tehnică 4,83 mp
4. Baie 5,28 mp
5. Bucătărie 5,61 mp
6. Camera de zi 32,83 mp
7. Dormitor 12,30 mp
8. Birou 8,98 mp
9. Terasă 25,65 mp
10. Terasă 8,55 mp
MANSARDĂ
11. Hol 7,50 mp
12. Dormitor 22,20 mp
13. Baie 4,57 mp
14. Pod x,yz mp

PLAN MANSARDĂ

SIMULĂRI 3D

FAȚADE

ÎNCADRARE ÎN TEREN

Putem realiza și adaptări în funcție de particularitățile terenului – pantă, orientare față de punctele cardinale, acces, vecinătăți – astfel încât casa să se integreze armonios în amplasament. Toate aceste modificări sunt gândite atent, atât din punct de vedere estetic, cât și structural și energetic.

MODIFICĂ DUPĂ BUNUL PLAC

La oricare dintre proiectele noastre se pot modifica diferite elemente, majora sau micșora deschideri, recompartimenta funcționalul, se pot modifica înălțimi de nivel, interveni în arhitectura fațadelor sau panta acoperișului după bunul plac. (proiect casa Brasov)
Fiecare proiect este tratat ca o bază de pornire flexibilă, ce poate fi adaptată în funcție de preferințele și nevoile beneficiarului. Ne dorim ca locuințele pe care le realizăm să reflecte personalitatea celor care le vor locui. 
De aceea, punem accent pe colaborare, ascultăm dorințele clienților și le oferim soluții concrete de modificare care respectă atât gustul lor estetic, cât și cerințele tehnice și normativele în vigoare. (proiect casa Brasov)

Dacă se dorește modificarea unui proiect pentru a adăuga o cameră în plus, un birou, un garaj, o terasă sau o zonă de relaxare, adaptăm planul în funcție de suprafața construită disponibilă, de reglementările urbanistice ale zonei și de bugetul estimat.
La fel, dacă beneficiarul vrea să transforme o casă clasică într-una cu aspect modern, intervenim în arhitectura fațadelor, în proporții, în învelitoare sau în materiale, pentru a obține rezultatul dorit fără a compromite funcționalitatea. (proiect casa Brasov)

cost proiect casa

Scopul nostru este ca fiecare client să beneficieze de o locuință personalizată, optimă și eficientă, care să corespundă visurilor sale și să ofere confortul dorit pe termen lung. (proiect casa Brasov)

Social
media
„Distribuie aceste proiecte case mici cu prietenii tăi și inspiră-i să-și construiască locuința ideală! 🏡 Urmărește-ne pe social media pentru modele de case cu etaj randate 3D, create cu ajutorul inteligenței artificiale, și descoperă soluții moderne, eficiente și sustenabile pentru viitorul tău cămin.”
Casa din proiect - proiecte de case